Chalet - CHALET LES MERANDOUS
Arêches 70 m²Présentation
Chalet 4 pièces sur 3 niveaux exposé Sud-Est de 70m² + 18m² sous 1m80 :
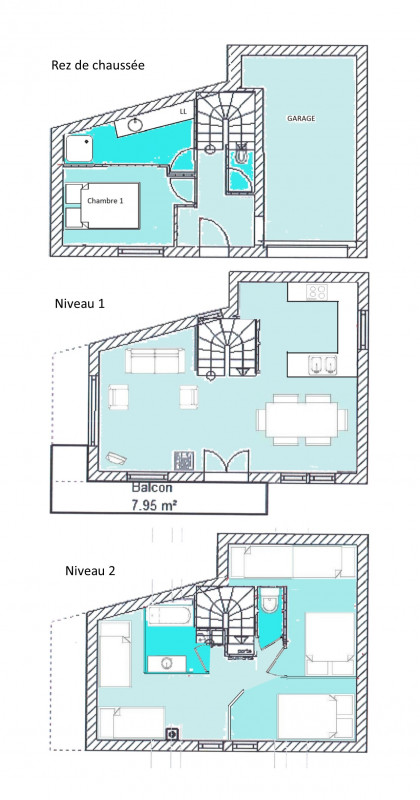
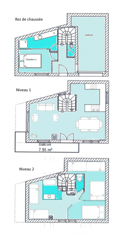
Niveau 0 :
- Garage et casier à skis
- Chambre 1 : 1 lit 160 (couette)
- WC
- Salle d'eau
Niveau 1 :
- Séjour et cuisine
- Terrasse et balcon
Niveau 2 :
- Chambre 2 : 1 lit 140 + 2 lits 90 (couettes)
- Chambre 3 : 1 lit 160 (couette)
- Salle de jeux
- Salle de bains
- WC
Animaux refusés
Possibilité de location de linge lit et toilette, non inclus dans la location.
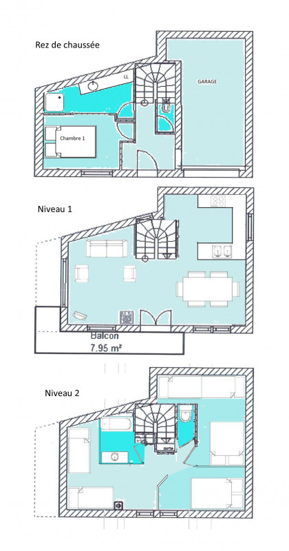
Niveau 0 :
- Garage et casier à skis
- Chambre 1 : 1 lit 160 (couette)
- WC
- Salle d'eau
Niveau 1 :
- Séjour et cuisine
- Terrasse et balcon
Niveau 2 :
- Chambre 2 : 1 lit 140 + 2 lits 90 (couettes)
- Chambre 3 : 1 lit 160 (couette)
- Salle de jeux
- Salle de bains
- WC
Animaux refusés
Possibilité de location de linge lit et toilette, non inclus dans la location.
Le chalet les Mérandous est situé face au village d'Arêches, dans le hameau des Carroz :
- A 1,5 km à pied des commerces et des animations
- L'hiver, à 5 minutes en voiture des remontées mécaniques du Grand Mont (1,5 km)
Ce chalet récent offre des prestations de qualité dans un esprit cocooning avec une vue dominante et un ensoleillement optimal.
- A 1,5 km à pied des commerces et des animations
- L'hiver, à 5 minutes en voiture des remontées mécaniques du Grand Mont (1,5 km)
Ce chalet récent offre des prestations de qualité dans un esprit cocooning avec une vue dominante et un ensoleillement optimal.
En Bref
- Type de bâtiment :
- Chalet
- Type de logement :
- Appartement
- Quartier :
- Arêches
- Capacité :
- 70 m²
- Nombre de chambre(s) :
- 3 chambres
Descriptif détaillé
- Configuration :
- Balcon
Équipements & Services
- Stationnement :
- Garage
- Multimédia :
- Télévision
- Electroménager :
- Hotte aspirante
- Lave linge privatif
- Lave linge collectif
- Lave vaisselle
- Micro-ondes
- Local à usage spécifique :
- Local à skis
- Energie :
- Cheminée / Poêle
Disponibilités
Destination
Les Carroz
73270
ARÊCHES
Coordonnées GPS
Latitude : 45.690498
Longitude : 6.561321



























