3 pièces / 3 pièces cabine - RESIDENCE VAL BLANC II
Présentation
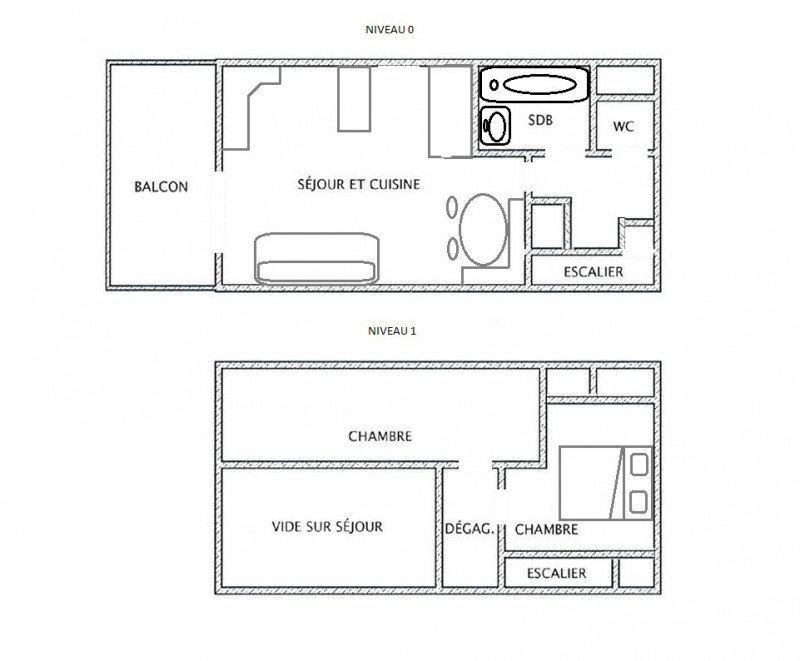
Au niveau 4, appartement duplex 3 pièces exposé Ouest de 40,20m² + 5,70m² en sous pente :
Niveau 0 :
- Entrée
- Cuisine / séjour avec canapé gigogne (couette + couverture)
- Salle de bains
- WC
- Balcon
Niveau 1 :
- Chambre 1 : 1 lit 140 (couette + couverture)
- Chambre 2 : 2 couchages 90 (couettes + couvertures)
Casier à skis privatif
Garage (Troisième garage sur la droite en rentrant, n°1 sur la porte)
Animaux refusés
Possibilité de location de linge lit et toilette, non inclus dans la location.
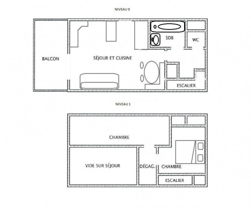
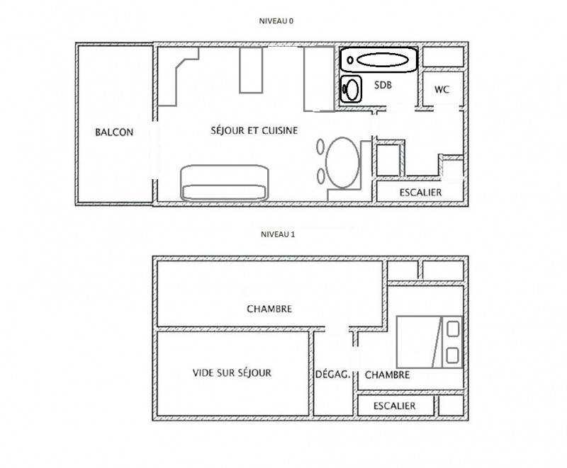
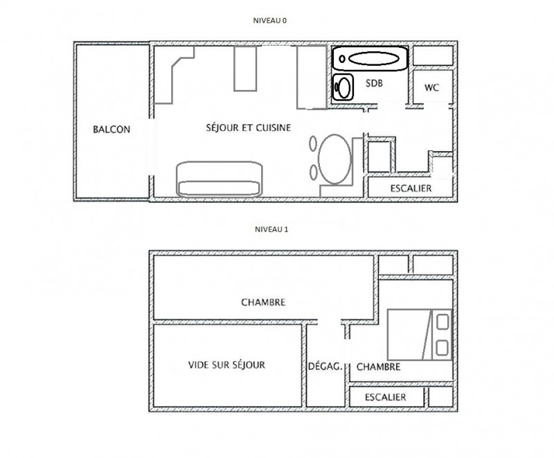
Niveau 0 :
- Entrée
- Cuisine / séjour avec canapé gigogne (couette + couverture)
- Salle de bains
- WC
- Balcon
Niveau 1 :
- Chambre 1 : 1 lit 140 (couette + couverture)
- Chambre 2 : 2 couchages 90 (couettes + couvertures)
Casier à skis privatif
Garage (Troisième garage sur la droite en rentrant, n°1 sur la porte)
Animaux refusés
Possibilité de location de linge lit et toilette, non inclus dans la location.
La résidence Val Blanc II est située au coeur du village d'Arêches :
- A proximité des commerces et des animations
- L'hiver, à 2 pas de l'arrêt ski bus gratuit et à 100m des remontées mécaniques du Grand Mont
Cette résidence avec ascenseur offre l'été l'accès à une piscine extérieure non chauffée (ouverte en juilet août de 7h à 20h).
- A proximité des commerces et des animations
- L'hiver, à 2 pas de l'arrêt ski bus gratuit et à 100m des remontées mécaniques du Grand Mont
Cette résidence avec ascenseur offre l'été l'accès à une piscine extérieure non chauffée (ouverte en juilet août de 7h à 20h).
En Bref
- Type de logement :
- Appartement
- Quartier :
- Arêches
- Capacité :
- 40.2 m²
- Nombre de chambre(s) :
- 2 chambres
Descriptif détaillé
- Configuration :
- Balcon
- Composition du Séjour :
- 1 canapé(s) gigogne(s)
- Chambre 1 :
- 1 lit(s) double 140cm
- Chambre 2 :
- 2 lit(s) simple
Équipements & Services
- Couette ou couverture :
- Couettes
- Couvertures
- Stationnement :
- Garage
- Equipements intérieurs :
- Ascenseur
- Multimédia :
- Télévision
- Electroménager :
- Lave linge privatif
- Lave linge collectif
- Lave vaisselle
- Micro-ondes
Disponibilités
Destination
69 route de Monteiller
73270
ARÊCHES
Coordonnées GPS
Latitude : 45.687045
Longitude : 6.565667




















