3 pièces / 3 pièces cabine - RESIDENCE LES CHALETS DE LA CASCADE
Présentation
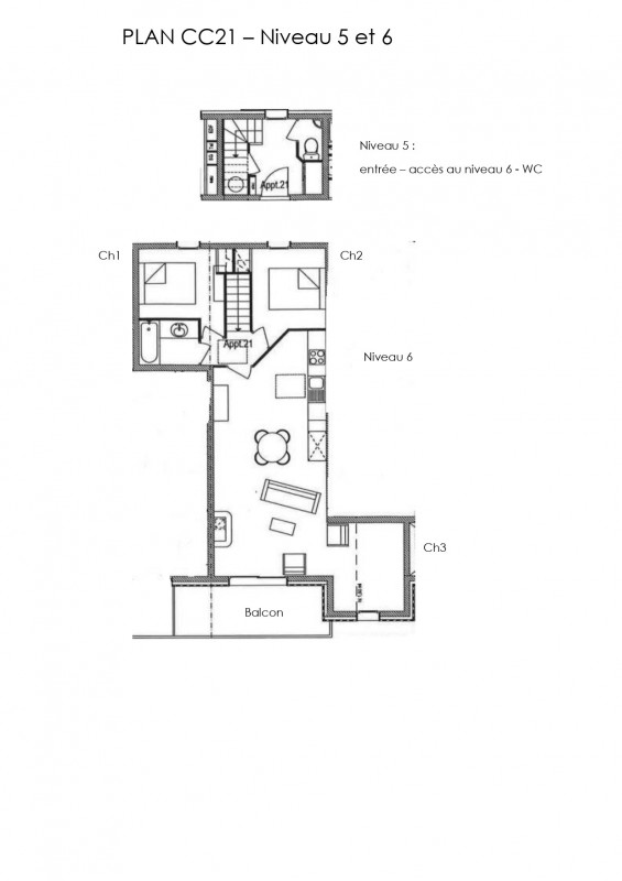
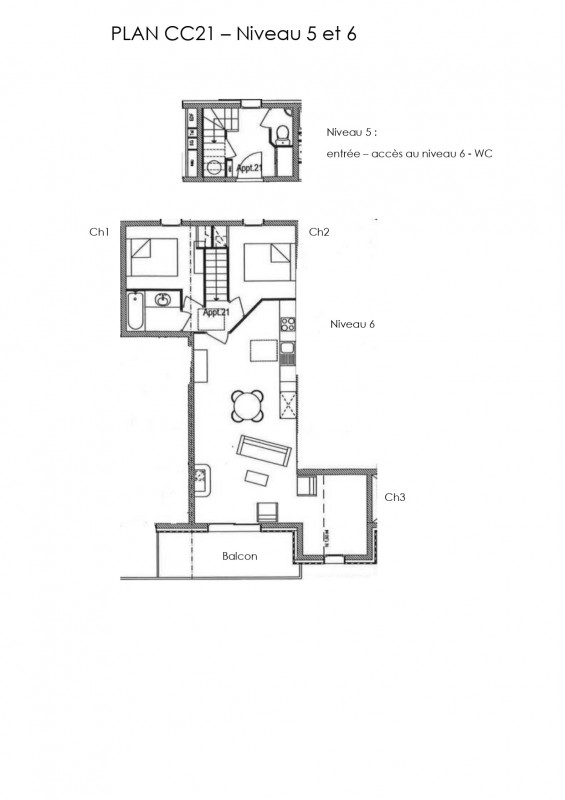
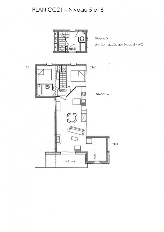
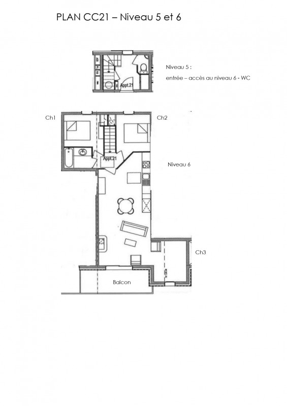
Au niveau 5 et 6, appartement 3 pièces exposé Sud-Ouest de 56m² :
- Cuisine / séjour
- Chambre 1 : 1 lit 140 (couette )
- Chambre 2 : 1 lit 140 (couette )
- Chambre 3 dans séjour : 1 lit 140 (couette )
- Salle de bains
- WC au niveau 5
- Balcon
- Casier à skis privatif
- Animaux refusés
- Garage possible en supplément
L'ascenseur dessert jusqu'au 3ème étage, les deux autres étages sont à monter à pied.
Possibilité de location de linge lit et toilette, non inclus dans la location.
- Cuisine / séjour
- Chambre 1 : 1 lit 140 (couette )
- Chambre 2 : 1 lit 140 (couette )
- Chambre 3 dans séjour : 1 lit 140 (couette )
- Salle de bains
- WC au niveau 5
- Balcon
- Casier à skis privatif
- Animaux refusés
- Garage possible en supplément
L'ascenseur dessert jusqu'au 3ème étage, les deux autres étages sont à monter à pied.
Possibilité de location de linge lit et toilette, non inclus dans la location.
La résidence les chalets de la Cascade est située sur les hauteurs du village d'Arêches , seul le 1er chalet dispose d'un ascenceur :
- A 7/8 minutes à pied des commerces et des animations (500m)
- L'hiver, à 100m de l'arrêt ski bus gratuit (circulation en vacances scolaires)
Elle bénéficie d'un très bon ensoleillement et d'une superbe vue sur le village.
- A 7/8 minutes à pied des commerces et des animations (500m)
- L'hiver, à 100m de l'arrêt ski bus gratuit (circulation en vacances scolaires)
Elle bénéficie d'un très bon ensoleillement et d'une superbe vue sur le village.
En Bref
- Type de logement :
- Appartement
- Quartier :
- Arêches
- Capacité :
- 56 m²
- Nombre de chambre(s) :
- 3 chambres
Descriptif détaillé
- Configuration :
- Balcon
Équipements & Services
- Stationnement :
- Garage
- Equipements intérieurs :
- Ascenseur
- Multimédia :
- Télévision
- Electroménager :
- Lave vaisselle
- Micro-ondes
- Local à usage spécifique :
- Local à skis
Disponibilités
Destination
La Listière
73270
ARÊCHES
Coordonnées GPS
Latitude : 45.684666
Longitude : 6.571427


























