3 pièces / 3 pièces cabine - RESIDENCE BALCON DES CHAMPS
Arêches 43 m²Présentation
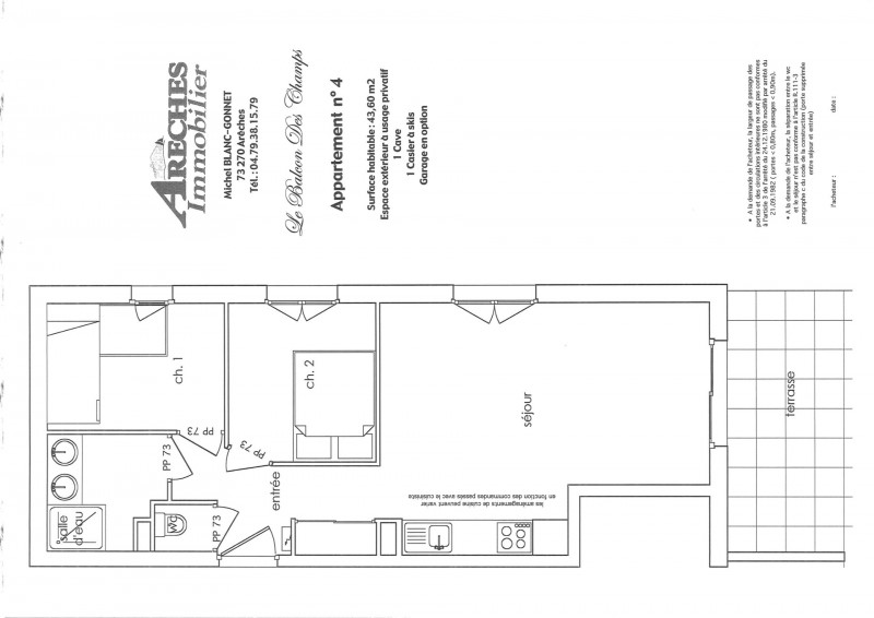
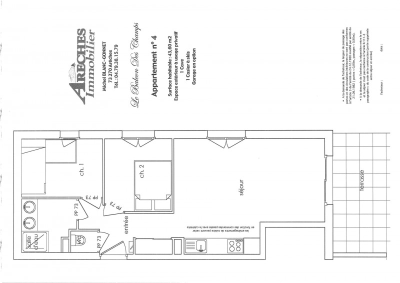
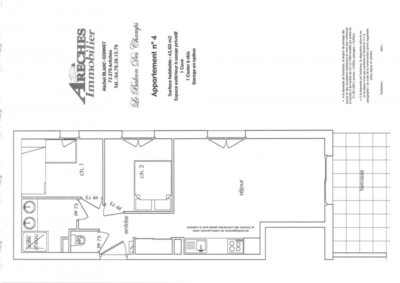
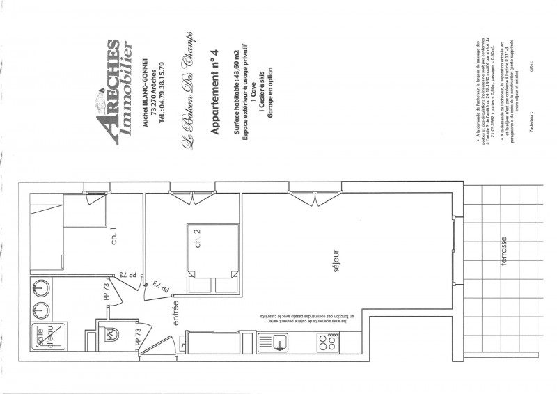
Au niveau 1 RDJ, appartement 3 pièces exposé Sud-Est de 43 m² :
- Entrée
- Cuisine / Séjour avec canapé convertible
- Chambre 1 : 1 lit 140 (couette)
- Chambre 2 : 1 lit 90x2 superposé + 1 lit 90 gigone
- Salle d'eau
- WC
- Terrasse / jardinet
- Casier à skis privatif
- Connexion Wifi
- Animaux refusés
Possibilité de location de linge lit et toilette, non inclus dans la location.
- Entrée
- Cuisine / Séjour avec canapé convertible
- Chambre 1 : 1 lit 140 (couette)
- Chambre 2 : 1 lit 90x2 superposé + 1 lit 90 gigone
- Salle d'eau
- WC
- Terrasse / jardinet
- Casier à skis privatif
- Connexion Wifi
- Animaux refusés
Possibilité de location de linge lit et toilette, non inclus dans la location.
La résidence le Balcon des Champs est située face au village d'Arêches :
- A 800m à pied des commerces et des animations
- L'hiver, à 600m de l'arrêt ski bus gratuit et à 3 minutes en voiture des remontées mécaniques du Grand Mont (1 km)
Cette résidence de standing compte 11 logements au charme montagnard et profite d'une superbe vue sur le village.
- A 800m à pied des commerces et des animations
- L'hiver, à 600m de l'arrêt ski bus gratuit et à 3 minutes en voiture des remontées mécaniques du Grand Mont (1 km)
Cette résidence de standing compte 11 logements au charme montagnard et profite d'une superbe vue sur le village.
En Bref
- Type de logement :
- Appartement
- Quartier :
- Arêches
- Capacité :
- 43 m²
- Nombre de chambre(s) :
- 2 chambres
Descriptif détaillé
- Configuration :
- Balcon
Équipements & Services
- Multimédia :
- Télévision
- Electroménager :
- Lave linge privatif
- Lave linge collectif
- Lave vaisselle
- Micro-ondes
- Local à usage spécifique :
- Local à skis
Disponibilités
Destination
Les Champs
Les Carroz d'en bas
73270
ARÊCHES
Coordonnées GPS
Latitude : 45.688156
Longitude : 6.562032





















