2 pièces / 2 pièces cabine - RESIDENCE VAL BLANC I
Arêches 29 m²Présentation
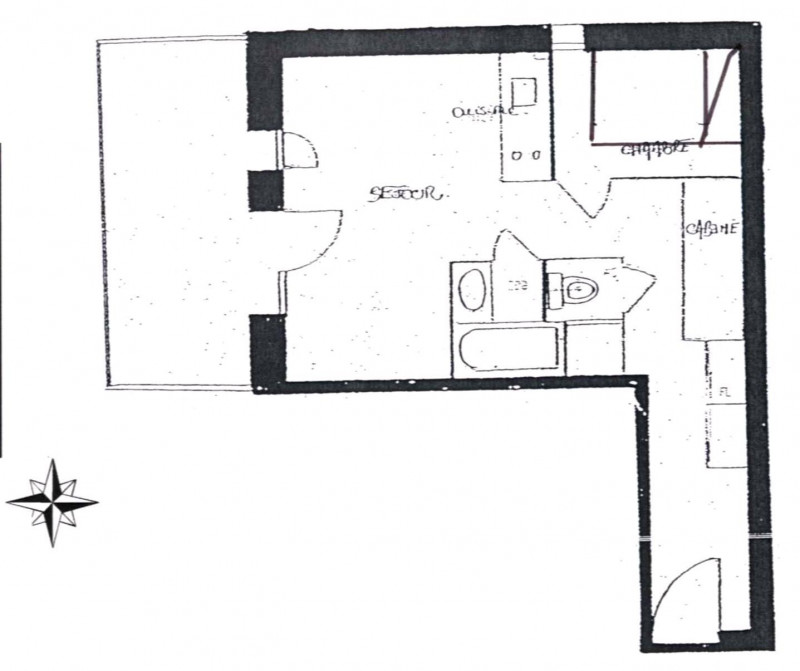
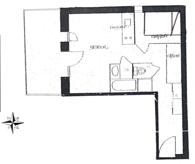
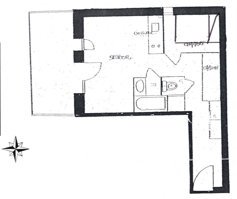
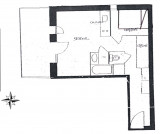
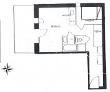
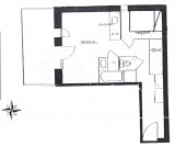
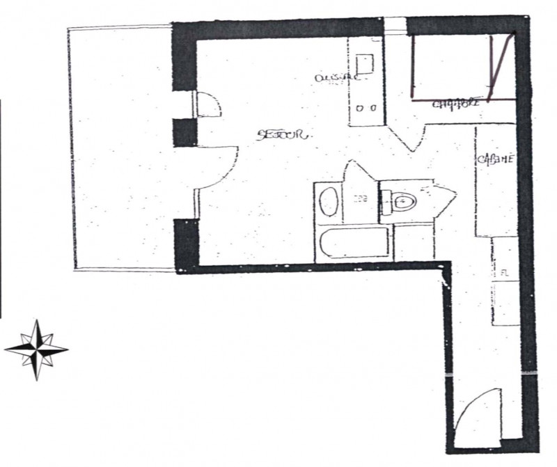
Au niveau 0, appartement 2 pièces et coin montagne ouvert exposé Sud de 29m² :
- Entrée / coin montagne : 1 lit 90x2 superposé
- Séjour / cuisine
- Chambre : 1 lit 140 (couette + couverture)
- Salle de bains
- WC
- Balcon
- Casier à skis privatif
- Animaux acceptés
Possibilité de location de linge lit et toilette, non inclus dans la location.
- Entrée / coin montagne : 1 lit 90x2 superposé
- Séjour / cuisine
- Chambre : 1 lit 140 (couette + couverture)
- Salle de bains
- WC
- Balcon
- Casier à skis privatif
- Animaux acceptés
Possibilité de location de linge lit et toilette, non inclus dans la location.
La résidence Val Blanc I est située au coeur du village d'Arêches :
- A proximité des commerces et des animations
- L'hiver, à 2 pas de l'arrêt ski bus gratruit et à 100m des remontées mécaniques du Grand Mont
Cette résidence avec ascenseur offre l'été l'accès à une piscine extérieure non chauffée (ouverte en juilet août de 7h à 20h).
- A proximité des commerces et des animations
- L'hiver, à 2 pas de l'arrêt ski bus gratruit et à 100m des remontées mécaniques du Grand Mont
Cette résidence avec ascenseur offre l'été l'accès à une piscine extérieure non chauffée (ouverte en juilet août de 7h à 20h).
En Bref
- Type de logement :
- Appartement
- Quartier :
- Arêches
- Capacité :
- 2 pièce(s)
- 29 m²
- Nombre de chambre(s) :
- 1 chambre
Descriptif détaillé
- Configuration :
- Balcon
- Composition du Séjour :
- 1 canapé(s)
- Chambre 1 :
- 1 lit(s) double 140cm
- Coin montagne :
- 1 lit(s) simple(s) superposés
Équipements & Services
- Couette ou couverture :
- Couettes
- Couvertures
- Equipements intérieurs :
- Ascenseur
- Multimédia :
- Télévision
- Electroménager :
- Lave vaisselle
- Local à usage spécifique :
- Local à skis
Disponibilités
Destination
302, Route du Grand Mont
73270
ARÊCHES
Coordonnées GPS
Latitude : 45.686570
Longitude : 6.565560















