2 pièces / 2 pièces cabine - RESIDENCE VAL BLANC I
Arêches 28 m²Présentation
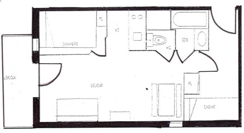
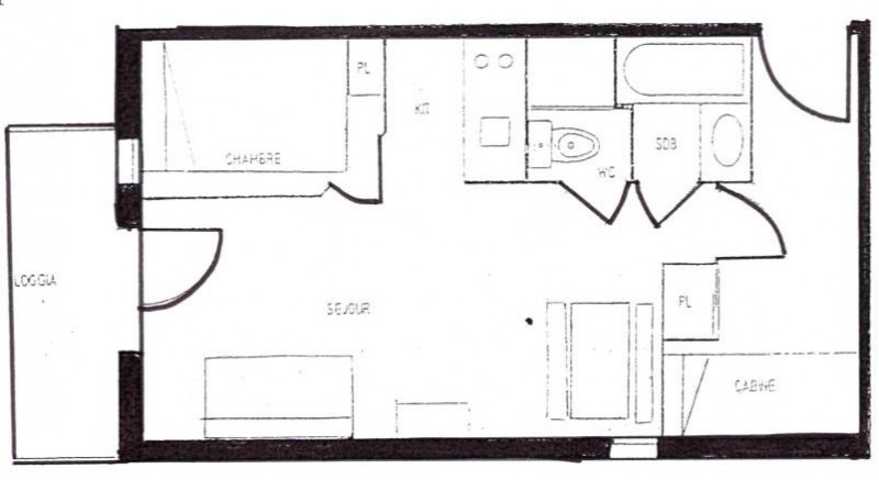
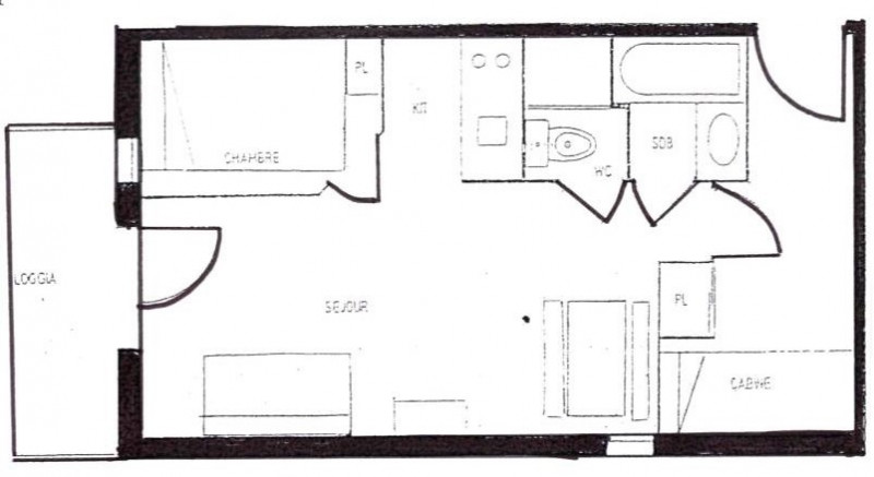
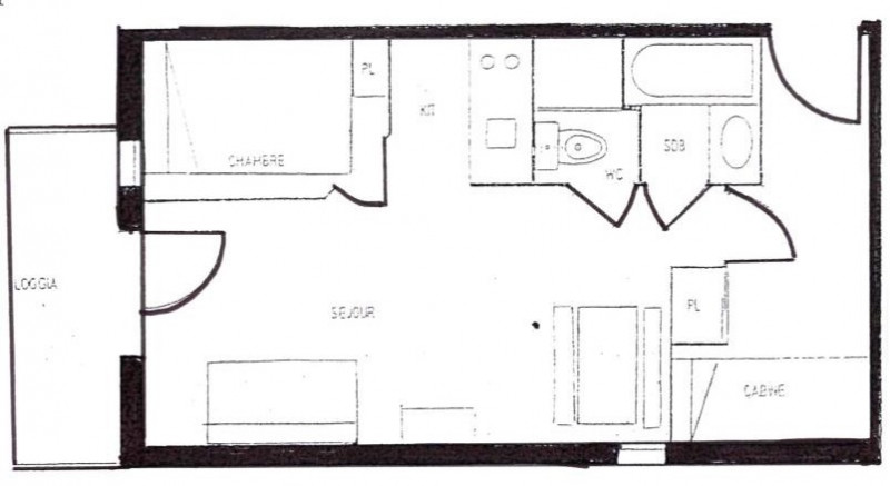
Au niveau 3, appartement 2 pièces et coin montagne exposé Sud de 28m² :
- Entrée / coin montagne : 1 lit 80x2 superposé (couvertures)
- Cuisine / séjour : 1 canapé convertible (couverture)
- Chambre 1 : 1 BZ convertible (couverture)
- Salle de bains
- WC
- Balcon
- Casier à skis privatif
Possibilité de location de linge lit et toilette, non inclus dans la location.
- Entrée / coin montagne : 1 lit 80x2 superposé (couvertures)
- Cuisine / séjour : 1 canapé convertible (couverture)
- Chambre 1 : 1 BZ convertible (couverture)
- Salle de bains
- WC
- Balcon
- Casier à skis privatif
Possibilité de location de linge lit et toilette, non inclus dans la location.
La résidence Val Blanc I est située au coeur du village d'Arêches :
- A proximité des commerces et des animations
- L'hiver, à 2 pas de l'arrêt ski bus gratruit et à 100m des remontées mécaniques du Grand Mont
Cette résidence avec ascenseur offre l'été l'accès à une piscine extérieure non chauffée (ouverte en juilet août de 7h à 20h).
- A proximité des commerces et des animations
- L'hiver, à 2 pas de l'arrêt ski bus gratruit et à 100m des remontées mécaniques du Grand Mont
Cette résidence avec ascenseur offre l'été l'accès à une piscine extérieure non chauffée (ouverte en juilet août de 7h à 20h).
En Bref
- Type de logement :
- Appartement
- Quartier :
- Arêches
- Capacité :
- 2 pièce(s)
- 28 m²
- Nombre de chambre(s) :
- 1 chambre
Descriptif détaillé
- Configuration :
- Balcon
Équipements & Services
- Equipements intérieurs :
- Ascenseur
- Multimédia :
- Télévision
- Electroménager :
- Lave vaisselle
- Local à usage spécifique :
- Local à skis
Disponibilités
Destination
302, Route du Grand Mont
73270
ARÊCHES
Coordonnées GPS
Latitude : 45.686570
Longitude : 6.565560

















