2 pièces / 2 pièces cabine - RESIDENCE L'ECRIN DES ALPES I
Présentation
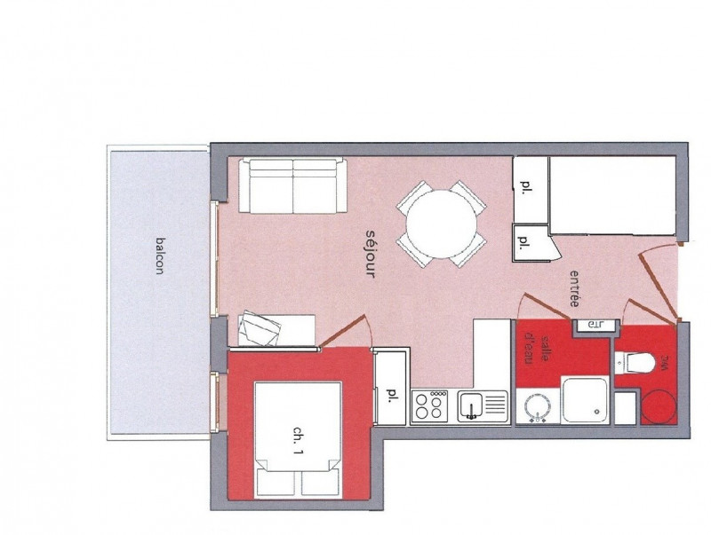
Au niveau 2, appartement 2 pièces et coin montagne, exposé Sud Ouest de 33m² :
- Entrée coin montagne : 2 lits 130 superposés (couettes)
- Séjour / cuisine
- Chambre 1 : 1 lit 140 (couette)
- Salle d'eau
- WC
- Balcon
- Casier à skis privatif
- Appartement loué avec box parking (1er à côté de la résidence - Hauteur garage 2.19m)
Animaux refusés
Possibilité de location de linge lit et toilette, non inclus dans la location.
- Entrée coin montagne : 2 lits 130 superposés (couettes)
- Séjour / cuisine
- Chambre 1 : 1 lit 140 (couette)
- Salle d'eau
- WC
- Balcon
- Casier à skis privatif
- Appartement loué avec box parking (1er à côté de la résidence - Hauteur garage 2.19m)
Animaux refusés
Possibilité de location de linge lit et toilette, non inclus dans la location.
La résidence Ecrin des Alpes est située sur les hauteurs du village d'Arêches :
- A 5 minutes à pied des commerces et des animations (400m)
- L'hiver, à 80m de l'arrêt ski bus gratuit (circulation en vacances scolaires) et à 500m de l'arrêt ski bus gratuit (hors vacances scolaires)
Cette résidence récente (2013) compte 14 logements et offre confort et calme.
Elle bénéficie d'un très bon ensoleillement et d'une superbe vue sur le village.
- A 5 minutes à pied des commerces et des animations (400m)
- L'hiver, à 80m de l'arrêt ski bus gratuit (circulation en vacances scolaires) et à 500m de l'arrêt ski bus gratuit (hors vacances scolaires)
Cette résidence récente (2013) compte 14 logements et offre confort et calme.
Elle bénéficie d'un très bon ensoleillement et d'une superbe vue sur le village.
En Bref
- Type de logement :
- Appartement
- Quartier :
- Arêches
- Capacité :
- 2 pièce(s)
- 33 m²
- Nombre de chambre(s) :
- 1 chambre
Descriptif détaillé
- Configuration :
- Balcon
Équipements & Services
- Stationnement :
- Garage
- Multimédia :
- Télévision
- Electroménager :
- Lave linge privatif
- Lave linge collectif
- Lave vaisselle
- Local à usage spécifique :
- Local à skis
Disponibilités
Destination
Route de la Mine
73270
ARÊCHES
Coordonnées GPS
Latitude : 45.685575
Longitude : 6.571087




















